
Architecture
Each unit has a large lockable garage, private infinity pool, large outdoor decks and other amazing design elements.
Construction will start soon, and the project will be completed for hand-over around 16-18 months later.
Image: View from Crank Street
It will be an outstanding high-quality product
designed by an internationally acclaimed architect.
New construction
Visually stunning subtropical and sustainable architecture
Truly unique location, in the village, on the beach, and surrounded by pristine nature and forever views
Huge external terraces and decks
Rooftop terrace; lift from basement to Level +2
Garage: large secure 2-car lockable basement parking with storage area
High ceilings and air conditioning; ceiling fans in every bedroom and living area
Energy-efficient construction; ducted air-conditioning
Large sliding doors opening to terraces, for indoor-outdoor flow
Insulated metal roof with PV-solar power and battery backup
Easy one hour drive from Brisbane International Airport
Short 4 km drive to Noosa hospital and other health services
Beach life style: easy access to several of the best beaches along the Sunshine Coast
Highlights
Private resort style pool with infinity edge, sun deck, and outdoor BBQ area
Kitchen island and high-quality kitchen with Cesarstone benchtop and upscale appliances
Flooring: large-format porcelain tiles for internal floor in the living area
Laundry room and storage spaces
This home sets up perfectly to enjoy full-time, part-time, or as a high income-producing rental property.
There are only three units in this luxurious complex,
and two apartments are generously across two levels.
If you have been searching for a picture-perfect location for your dream coastal retreat, you have just found it here at this gorgeous coastal location.
These apartments celebrate the absolute joy of living by the beach in generous light-filled spaces indoors and out.
These stylish, light-filled apartments are perfectly positioned, directly opposite Webb Park, just footsteps to the surf club and patrolled beach.
SOLARIS Sands comes with a design from award-winning Steffen Lehmann, an internationally recognised designer specialised on creating resort style homes and upmarket residences for the subtropical climate.
Level -1 - Lower level
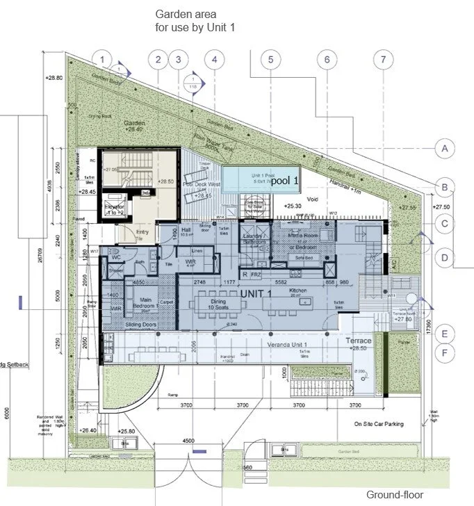
Level 0 - Ground floor
Level 1
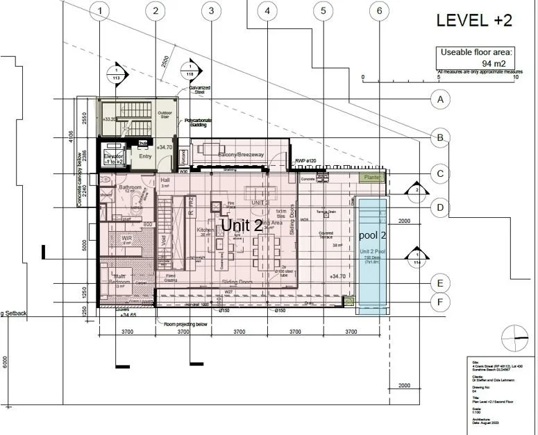
Level 2
Roof plan
SOLARIS Sands offers three units - two large and one small one:
Apartment 1 (Unit 1) on ground-floor and the lower level: with 3-bedrooms, 3-bathrooms and 2 secure garage spaces.
Apartment 2 (Unit 2) on Level +1 and +2: with 4-bedrooms, 2 bathrooms and 2 secure garage spaces.
Apartment 3 (Unit 3) on Level -1 has 1 bedroom, 1 bathroom and 1 secure garage space.
Experience contemporary subtropical living.
All apartments will have ducted air conditioning, plus carpeting in the bedrooms and electric charging stations in the garage area for electric bikes and cars.
Site plan
The interior design will exude coastal luxe with an on-trend monochromatic aesthetic, high-end natural stone and porcelain tiles indoors and out, also timber flooring and cabinetry, plus the latest Miele appliances, integrated where possible.
The Schematic Design phase has been completed. However, this does not mean that you can’t bring in your own vision or suggest changes. Now is a good time to bring your own interior design vision into the project.
These apartments are provided turnkey, with all kitchen appliances and built-in cupboards and wardrobes, otherwise unfurnished. Several interior design packages are available, meaning that any new owner can really put their own touch on this flawless property.
Soon after the purchase of your new home, you will be invited to meet with the interior designer to see the various high-quality finishes offered and discuss your imagination for the new home
You will find that we generally provide a very high standard of materials, products and appliances. However, if you want changes or specific upgrades to these standards before construction start, this will not be a problem: we will create a Change Order Addendum to the Contract to document all of the requested changes. We have successfully completed this common and transparent process on other projects.